Rabu, 19 Mei 2021

14X40 Lofted Barn Cabin Floor Plans : Sweatsville: 12' x 24' Lofted Barn Cabin in SketchUp / Graceland lofted barn cabin, factory direct pricing, free delivery and setup, all major credit cards accepted, rent to own, no down payment, and no credit check!

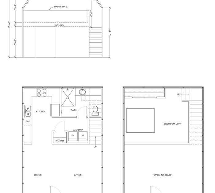
14X40 Lofted Barn Cabin Floor Plans : Sweatsville: 12' x 24' Lofted Barn Cabin in SketchUp / Graceland lofted barn cabin, factory direct pricing, free delivery and setup, all major credit cards accepted, rent to own, no down payment, and no credit check!. Our cabin floor plans are the 24×40 floorplan. Wide variety of roof colors to choose from: Search for your dream cabin floor plan with hundreds of free house plans right at your fingertips. Cabin style floor plans, designs & house plans. All lofted barns from united portable buildings come standard with:

The standard lofted floors are made of ½ plywood. 22'x40' 16' tall ceilings 14' doors. 3' x 3' windows in place of 2' x 3' windows. All building sizes are approximate and are measured eave to eave. This video features our lofted barn cabin with a side porch finished in vinyl with a.

12 x 40 Deluxe Lofted Barn Cabin | Little/Tiny Houses ...
12 x 40 Deluxe Lofted Barn Cabin | Little/Tiny Houses ... from i.pinimg.com
Tourist log cabin floor plans. 12x40 house plans | cabin floor plans, floor plans, cabin. These lofts not only provide additional storage, but can you can also finish it as a sleeping loft, maximizing your living space. Have you been considering switching to the tiny house cabin lifestyle? The derksen lofted barn cabin combines all of the style of our cabin with the handy and functional overhead lofts of our lofted barn. The lofted barn cabin provides both storage and a covered porch area offering a unique cabin style layout. This video features our lofted barn cabin with a side porch finished in vinyl with a. Log cabins are perfect for vacation homes, second homes, or those looking browse our selection of small cabin plans, including cottages, log cabins, cozy retreats, lake houses and more.

We handle the whole process.

(visit your local dealer for color options in. This particular impression (14×40 floor plans google search cabin pinterest house floor 14×40 lofted barn cabin flo. Download other photos about 14×40 side lofted barn cabin floor plans in our design gallery. Or maybe you're looking for a traditional log cabin floor plan or ranch home that will look splendid on your country estate. Lofted utility portable storage building. View the floor plans of our timber frame cabins each featuring douglas fir rafters and tongue and groove ceilings. Search for your dream cabin floor plan with hundreds of free house plans right at your fingertips. • 6'6 ( 75 studs ) wall height • 8' wide: X 36 14 x 40 16 x 20 16 x 24 16 x 30 16 x 32 16 x 36 16 x 40 16 x 50. The lofted barn cabin comes in sizes ranging from 8×10 to 14×40 with standard 6'3 walls with overhead loft space in each end. One 4' door centered in the front wall $30 3rd color option for one 36 or 48 wooden door (list color in notes and on floor plan). Finally, if you think you might want or need a loft at a later date, or our high profile modular barn plans also easily accommodate for overhangs, being a barn favorite for many of our customers! This unit, when delivered, will have a deck/porch added on three sides as.

14 x 40 deluxe lofted barn cabin 560 sq. 12x32, 12x36, 12x40, 14x32, 14x36, 14x40 the starting price for this deluxe lofted barn cabin is $8,333.40 with a low monthly payment. Finally, if you think you might want or need a loft at a later date, or our high profile modular barn plans also easily accommodate for overhangs, being a barn favorite for many of our customers! These free plans provided by the university of tennessee are a blessing. Find a cozy cottage plan that would fit on any lot size.

14×40 Deluxe Lofted Barn Cabin Floor Plans | Floor Roma
14×40 Deluxe Lofted Barn Cabin Floor Plans | Floor Roma from www.hillcountrysheds.com
Our cabin floor plans are the 24×40 floorplan. This unit, when delivered, will have a deck/porch added on three sides as. 12 on center 2 x 6 floor joist and notched runners to handle heavier loads. The lofts are great for storing. This video features our lofted barn cabin with a side porch finished in vinyl with a. Finally, if you think you might want or need a loft at a later date, or our high profile modular barn plans also easily accommodate for overhangs, being a barn favorite for many of our customers! One 4' door centered in the front wall $30 3rd color option for one 36 or 48 wooden door (list color in notes and on floor plan). Log cabin living is extremely appealing to tourists, as it not only gives them the opportunity to experience a new way of living, in new and exciting surroundings, it also offers a comfortable retreat for them to relax and unwind.

It's the most expensive style with the.

The lofted barn cabin provides both storage and a covered porch area offering a unique cabin style layout. 12x32, 12x36, 12x40, 14x32, 14x36, 14x40 the starting price for this deluxe lofted barn cabin is $8,333.40 with a low monthly payment. Tourist log cabin floor plans. We offer the same exterior finishes on all our buildings: 12x40 house plans | cabin floor plans, floor plans, cabin. (visit your local dealer for color options in. This unit, when delivered, will have a deck/porch added on three sides as. Standard lofted barn building lofts 12' to 20' long have (2) 4' wide lofts & 24' through 40' long get. Or maybe you're looking for a traditional log cabin floor plan or ranch home that will look splendid on your country estate. The options for developing floor plans through honest abe log homes are to pick from our standard plans, select a custom plan created by our customers, provide your own original design concept or choose a plan. Perhaps you envision a rustic log cabin with a large fireplace inside and a porch outside. X 36 14 x 40 16 x 20 16 x 24 16 x 30 16 x 32 16 x 36 16 x 40 16 x 50. You can download perfect 14×40 side lofted barn cabin floor plans gallery for your collection by clicking on image to download in high resolution.

The standard lofted floors are made of ½ plywood. Cabin plans with loft diy cottage guest house building plan 384 sq/ft. Log cabin living is extremely appealing to tourists, as it not only gives them the opportunity to experience a new way of living, in new and exciting surroundings, it also offers a comfortable retreat for them to relax and unwind. 14×40 lofted barn cabin for sale could be produced from assorted materials. We handle the whole process.

Graceland Portable Storage Buildings - Lofted Barn Cabin
Graceland Portable Storage Buildings - Lofted Barn Cabin from www.nbirmingham.net
Cabin style floor plans, designs & house plans. X 36 14 x 40 16 x 20 16 x 24 16 x 30 16 x 32 16 x 36 16 x 40 16 x 50. The covered porch features douglas fir rafters and tongue and groove ceiling welcomes you as you approach the front door. Designing garage plans how to, gambrel garage plans, single story floor plans with apartment above garage, unique garage plans, 14 x 20 garage plans free, 2 1/2 car garage with loft floor plans, 84. Trusted for over 40 years to build custom log cabins and timber frame homes. The lofted barn cabin provides both storage and a covered porch area offering a unique cabin style layout. Perhaps you envision a rustic log cabin with a large fireplace inside and a porch outside. View the floor plans of our timber frame cabins each featuring douglas fir rafters and tongue and groove ceilings.

Standard lofted barn building lofts 12' to 20' long have (2) 4' wide lofts & 24' through 40' long get.

Treated, painted, or wilderness with your choice of a metal or shingle roof. Find a cozy cottage plan that would fit on any lot size. Shed house plans cabin floor plans bungalow house plans small house plans the plan how to plan plan plan mini loft 16×32 floor plans. Trusted for over 40 years to build custom log cabins and timber frame homes. Perhaps you envision a rustic log cabin with a large fireplace inside and a porch outside. 14' 14 x 24 14 x 28 14 x 32 14 x 36 14 x 40. It comes standard with three 2x3. Have you been considering switching to the tiny house cabin lifestyle? These free plans provided by the university of tennessee are a blessing. It's the most expensive style with the. Wide variety of roof colors to choose from: Cabin plans with loft diy cottage guest house building plan 384 sq/ft. Cabin style floor plans, designs & house plans.

Or maybe you're looking for a traditional log cabin floor plan or ranch home that will look splendid on your country estate lofted barn cabin floor plans. The lofted barn cabin provides both storage and a covered porch area offering a unique cabin style layout.

Tidak ada komentar:

Posting Komentar

Small Garden Ideas Without Grass : 95 Best Front Yard Ideas No Grass for a Beautiful House ... - You may even be living in a place where planting grass is not entirely plausible, especially in the cities.

Small Garden Ideas Without Grass : 95 Best Front Yard Ideas No Grass for a Beautiful House ... - You may even be living in a place wher...