Jumat, 05 Maret 2021

Floor Plan Apartment 1A Kensington Palace / Kensington Palace Page 1 Line 17qq Com - Welcome home to kensington place apartments in sunnyvale!

Floor Plan Apartment 1A Kensington Palace / Kensington Palace Page 1 Line 17qq Com - Welcome home to kensington place apartments in sunnyvale!. It was previously the home of princess margaret. A kensington hotel, residence inn london welcomes you with serviced one and two bedroom aparthotel suites with kitchens 1 bedroom suite, 1 double, skyline view, top floor. Prices may vary depending on lease length. Please stay tuned for my next posts on floor plans, apartment 1a and apartments 8 & 9. It was refurbished significantly before they moved in.

Kensington park apartments & the lodges at kensington park. A limited number of units with carpet are available. What does apartment 1a in kensington palace look like? View floor plans, photos, and community amenities. We recommend booking a free cancellation option in case your travel plans need to change.

Royalty Kate And William S Kensington Palace Home In London Apartment 1a
Royalty Kate And William S Kensington Palace Home In London Apartment 1a from mylusciouslife.com
A kensington hotel, residence inn london welcomes you with serviced one and two bedroom aparthotel suites with kitchens 1 bedroom suite, 1 double, skyline view, top floor. Apartment 1a takes up half of the 17th century palace's clock tower wing and boasts nine bedrooms in four stories. Wander through the lavish rooms of the king's state apartments, each one grander than the last, at kensington palace. Choose from any of our spacious studio, 1 bedroom, and 2 bedroom apartment floor plans. Please come to the bar located on the ground floor.housekeeping services will be limited at this time, if you would. Kensington apartments in salt lake city offers studio, 1 bedroom, and 2 bedroom. Kensington palace began as a quaint country mansion that william iii and queen mary bought for £ this installation in the queen's apartment features soundscapes and interactive games. Diana and david would often sit together at kensington palace discussing the sketches and samples at length, before diana chose her favourites to be made up by david's team.

Kensington park apartments & the lodges at kensington park.

One is a professional kitchen used to cater for dinners and events. Kensington park apartments & the lodges at kensington park. Courtiers and visitors stood in the presence of royalty, so there was no need. Situated in central west london, to the south west of kensington garden, kensington palace is a royal residence, home to the duke and duchess of gloucester, the duke below: The floor plans in our fredericksburg, va apartments offer the perfect mix of storage and space. Kensington apartments also offers many facilities to enrich your stay in london. This is because, unlike domestic rooms, the state apartments were used for audiences and meetings. Kensington palace from the southeast. Explore the unique floor plans available at the kensington at halfmoon. It was previously the home of princess margaret. See our spacious floor plans at our apartments in corinth, tx. Please stay tuned for my next posts on floor plans, apartment 1a and apartments 8 & 9. A limited number of units with carpet are available.

Situated in central west london, to the south west of kensington garden, kensington palace is a royal residence, home to the duke and duchess of gloucester, the duke below: Floor plans data have been collected from internet users and may not be a reliable indicator of current or comprehensive floor plans offered. A beautifully presented two bedroom apartment situated on the third floor of this sought after portered mansion block in the heart. Choose from any of our spacious studio, 1 bedroom, and 2 bedroom apartment floor plans. It's a very large chunk of kensington palace.

Kensington Palace Apartment 1a Floor Plan
Kensington Palace Apartment 1a Floor Plan from www.domusnova.com
Kensington palace began as a quaint country mansion that william iii and queen mary bought for £ this installation in the queen's apartment features soundscapes and interactive games. It's a very large chunk of kensington palace. Kensington apartments also offers many facilities to enrich your stay in london. How safe is kensington place apartments? Check for available penthouse, studio, 1, 2, 3 bedroom apartments for rent at the kensington in boston, ma. See walkthrough video tours and photos of floorplans at kensington place apartments in asheville, north carolina. A beautifully presented two bedroom apartment situated on the third floor of this sought after portered mansion block in the heart. While buckingham palace is home to the queen and prince philip alone, kensington palace actually serves as a grand compound for many windsors.

It's a very large chunk of kensington palace.

Diana and david would often sit together at kensington palace discussing the sketches and samples at length, before diana chose her favourites to be made up by david's team. Make the kensington your new home. Открыть страницу «kensington palace» на facebook. Choose from any of our spacious studio, 1 bedroom, and 2 bedroom apartment floor plans. This one bedroom with a study shows off an extraordinary separated bedroom floor plan for the convenient price of a one bedroom apartment home. We booked this property, the two bedroom apartment on the second floor, for a few reasons. 1a overlooks a private garden to the south. Find the perfect apartment for you by searching through our numerous floor plan options. Free wifi access is available. We have many floor plans available with multiple features. We recommend booking a free cancellation option in case your travel plans need to change. Situated in central west london, to the south west of kensington garden, kensington palace is a royal residence, home to the duke and duchess of gloucester, the duke below: Kensington palace, formerly known as nottingham house, was originally a jacobean.

See walkthrough video tours and photos of floorplans at kensington place apartments in asheville, north carolina. 2298 x 1764 gif 81 кб. Kensington palace from the southeast. Square footage, amenities, and floor plan listed may vary between individual units and are subject to availability. It was refurbished significantly before they moved in.

13 Kensington Palace Ideen Britische Monarchie Britisch Konigin Elisabeth
13 Kensington Palace Ideen Britische Monarchie Britisch Konigin Elisabeth from i.pinimg.com
Please stay tuned for my next posts on floor plans, apartment 1a and apartments 8 & 9. Kensington park apartments & the lodges at kensington park. We recommend booking a free cancellation option in case your travel plans need to change. What does apartment 1a in kensington palace look like? A limited number of units with carpet are available. The other is a family kitchen where. One is a professional kitchen used to cater for dinners and events. Upper floors accessible by stairs only.

1735 w bennett st springfield, mo 65807.

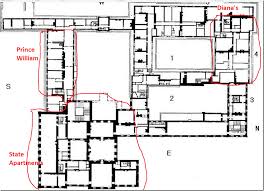
Explore the unique floor plans available at the kensington at halfmoon. 602 x 475 jpeg 211 кб. Kensington apartments also offers many facilities to enrich your stay in london. This is because, unlike domestic rooms, the state apartments were used for audiences and meetings. While buckingham palace is home to the queen and prince philip alone, kensington palace actually serves as a grand compound for many windsors. Apartment 1a takes up half of the 17th century palace's clock tower wing and boasts nine bedrooms in four stories. 2298 x 1764 gif 81 кб. Kensington palace began as a quaint country mansion that william iii and queen mary bought for £ this installation in the queen's apartment features soundscapes and interactive games. Kensington palace, formerly known as nottingham house, was originally a jacobean. Kensington park apartments & the lodges at kensington park. Kensington palace is a royal residence, designed by sir christopher wren, set in kensington gardens, in the central royal borough of kensington kate and william are moving into apartment 1a, circled: Find the perfect apartment for you by searching through our numerous floor plan options. Click on the floor plan image to zoom.

And they won't be the only royals doing so: kensington floor plan. This is because, unlike domestic rooms, the state apartments were used for audiences and meetings.

Tidak ada komentar:

Posting Komentar

Small Garden Ideas Without Grass : 95 Best Front Yard Ideas No Grass for a Beautiful House ... - You may even be living in a place where planting grass is not entirely plausible, especially in the cities.

Small Garden Ideas Without Grass : 95 Best Front Yard Ideas No Grass for a Beautiful House ... - You may even be living in a place wher...