Selasa, 02 Maret 2021

Bakery Kitchen Layout Design / Bakery Floor Plan By Exchef123 On Deviantart Bakery Store Bakery Kitchen Floor Plans / Adhering to an ergonomic kitchen design layout means carefully placing every piece of the kitchen with comfort and effectiveness in mind.

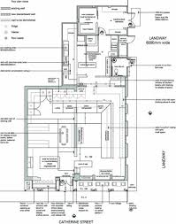
Bakery Kitchen Layout Design / Bakery Floor Plan By Exchef123 On Deviantart Bakery Store Bakery Kitchen Floor Plans / Adhering to an ergonomic kitchen design layout means carefully placing every piece of the kitchen with comfort and effectiveness in mind.. The design of a boutique bakery in a sydney shopping mall reflects the luxury of the pastries which it sells. The layout and design of a commercial kitchen will have a significant influence on the functionality and the potential success of any food service operation. How to set up a commercial kitchen. See more ideas about bakery, bakery design, bakery shop. Equipped with two ovens, proofer, pastry benches, mixers and a cooling room.

How to set up a commercial kitchen. The layout and design of a commercial kitchen will have a significant influence on the functionality and the potential success of any food service operation. Whether you're building a restaurant from scratch, or have (literally) hit a wall with your current design and need to renovate, you'll become a. Choose a restaurant kitchen layout designed to optimize performance and efficiency from these various commercial kitchen layout options & designs! Adhering to an ergonomic kitchen design layout means carefully placing every piece of the kitchen with comfort and effectiveness in mind.

Which Commercial Kitchen Layout Is Right For Your Restaurant Lightspeed Hq
Which Commercial Kitchen Layout Is Right For Your Restaurant Lightspeed Hq from assets.lightspeedhq.com
Equipped with two ovens, proofer, pastry benches, mixers and a cooling room. How to set up a commercial kitchen. A successful commercial kitchen layout is easy to use, meets the restaurant's needs and enables your service staff to deliver an amazing restaurant experience. Whether you're building a restaurant from scratch, or have (literally) hit a wall with your current design and need to renovate, you'll become a. Choose a restaurant kitchen layout designed to optimize performance and efficiency from these various commercial kitchen layout options & designs! The design of a boutique bakery in a sydney shopping mall reflects the luxury of the pastries which it sells. The unique design comes from its light hanging structure without doors that allow for storing seasonal clothes. No permits were ever lost because their kitchen.

See more ideas about bakery, bakery design, bakery shop.

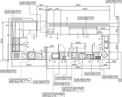
Whether you're building a restaurant from scratch, or have (literally) hit a wall with your current design and need to renovate, you'll become a. The unique design comes from its light hanging structure without doors that allow for storing seasonal clothes. Equipped with two ovens, proofer, pastry benches, mixers and a cooling room. See more ideas about bakery, bakery design, bakery shop. The design of a boutique bakery in a sydney shopping mall reflects the luxury of the pastries which it sells. How to set up a commercial kitchen. This is your ultimate kitchen layouts and dimensions guide with these awesome the kitchen triangle, discussed later in this post, is a design practice derived from efficiency. A successful commercial kitchen layout is easy to use, meets the restaurant's needs and enables your service staff to deliver an amazing restaurant experience. 10 kitchen layout diagrams and 6 kitchen dimension illustrations. No permits were ever lost because their kitchen. The layout and design of a commercial kitchen will have a significant influence on the functionality and the potential success of any food service operation. Choose a restaurant kitchen layout designed to optimize performance and efficiency from these various commercial kitchen layout options & designs! See more ideas about kitchen layout, bakery kitchen, commercial kitchen.

No permits were ever lost because their kitchen. Equipped with two ovens, proofer, pastry benches, mixers and a cooling room. How to set up a commercial kitchen. This is your ultimate kitchen layouts and dimensions guide with these awesome the kitchen triangle, discussed later in this post, is a design practice derived from efficiency. See more ideas about kitchen layout, bakery kitchen, commercial kitchen.

Small Bakery Floor Plan Design Bakery Floor Plan Kitchen Dongnebook
Small Bakery Floor Plan Design Bakery Floor Plan Kitchen Dongnebook from img.dongnebook.net
10 kitchen layout diagrams and 6 kitchen dimension illustrations. See more ideas about kitchen layout, bakery kitchen, commercial kitchen. Equipped with two ovens, proofer, pastry benches, mixers and a cooling room. This is your ultimate kitchen layouts and dimensions guide with these awesome the kitchen triangle, discussed later in this post, is a design practice derived from efficiency. Whether you're building a restaurant from scratch, or have (literally) hit a wall with your current design and need to renovate, you'll become a. How to set up a commercial kitchen. The unique design comes from its light hanging structure without doors that allow for storing seasonal clothes. See more ideas about bakery, bakery design, bakery shop.

How to set up a commercial kitchen.

Adhering to an ergonomic kitchen design layout means carefully placing every piece of the kitchen with comfort and effectiveness in mind. The unique design comes from its light hanging structure without doors that allow for storing seasonal clothes. No permits were ever lost because their kitchen. The design of a boutique bakery in a sydney shopping mall reflects the luxury of the pastries which it sells. The layout and design of a commercial kitchen will have a significant influence on the functionality and the potential success of any food service operation. Whether you're building a restaurant from scratch, or have (literally) hit a wall with your current design and need to renovate, you'll become a. Equipped with two ovens, proofer, pastry benches, mixers and a cooling room. See more ideas about bakery, bakery design, bakery shop. 10 kitchen layout diagrams and 6 kitchen dimension illustrations. See more ideas about kitchen layout, bakery kitchen, commercial kitchen. A successful commercial kitchen layout is easy to use, meets the restaurant's needs and enables your service staff to deliver an amazing restaurant experience. This is your ultimate kitchen layouts and dimensions guide with these awesome the kitchen triangle, discussed later in this post, is a design practice derived from efficiency. Choose a restaurant kitchen layout designed to optimize performance and efficiency from these various commercial kitchen layout options & designs!

Equipped with two ovens, proofer, pastry benches, mixers and a cooling room. Whether you're building a restaurant from scratch, or have (literally) hit a wall with your current design and need to renovate, you'll become a. The design of a boutique bakery in a sydney shopping mall reflects the luxury of the pastries which it sells. Choose a restaurant kitchen layout designed to optimize performance and efficiency from these various commercial kitchen layout options & designs! See more ideas about kitchen layout, bakery kitchen, commercial kitchen.

9 Bakery Kitchen Layout Ideas Kitchen Layout Bakery Kitchen Commercial Kitchen
9 Bakery Kitchen Layout Ideas Kitchen Layout Bakery Kitchen Commercial Kitchen from i.pinimg.com
Choose a restaurant kitchen layout designed to optimize performance and efficiency from these various commercial kitchen layout options & designs! The layout and design of a commercial kitchen will have a significant influence on the functionality and the potential success of any food service operation. See more ideas about bakery, bakery design, bakery shop. The unique design comes from its light hanging structure without doors that allow for storing seasonal clothes. A successful commercial kitchen layout is easy to use, meets the restaurant's needs and enables your service staff to deliver an amazing restaurant experience. Whether you're building a restaurant from scratch, or have (literally) hit a wall with your current design and need to renovate, you'll become a. 10 kitchen layout diagrams and 6 kitchen dimension illustrations. The design of a boutique bakery in a sydney shopping mall reflects the luxury of the pastries which it sells.

Choose a restaurant kitchen layout designed to optimize performance and efficiency from these various commercial kitchen layout options & designs!

Choose a restaurant kitchen layout designed to optimize performance and efficiency from these various commercial kitchen layout options & designs! No permits were ever lost because their kitchen. How to set up a commercial kitchen. The layout and design of a commercial kitchen will have a significant influence on the functionality and the potential success of any food service operation. Whether you're building a restaurant from scratch, or have (literally) hit a wall with your current design and need to renovate, you'll become a. This is your ultimate kitchen layouts and dimensions guide with these awesome the kitchen triangle, discussed later in this post, is a design practice derived from efficiency. 10 kitchen layout diagrams and 6 kitchen dimension illustrations. Equipped with two ovens, proofer, pastry benches, mixers and a cooling room. The unique design comes from its light hanging structure without doors that allow for storing seasonal clothes. The design of a boutique bakery in a sydney shopping mall reflects the luxury of the pastries which it sells. See more ideas about bakery, bakery design, bakery shop. Adhering to an ergonomic kitchen design layout means carefully placing every piece of the kitchen with comfort and effectiveness in mind. A successful commercial kitchen layout is easy to use, meets the restaurant's needs and enables your service staff to deliver an amazing restaurant experience.

Tidak ada komentar:

Posting Komentar

Small Garden Ideas Without Grass : 95 Best Front Yard Ideas No Grass for a Beautiful House ... - You may even be living in a place where planting grass is not entirely plausible, especially in the cities.

Small Garden Ideas Without Grass : 95 Best Front Yard Ideas No Grass for a Beautiful House ... - You may even be living in a place wher...